417 Av. Smart
$2,800/M - MLS #17569929
Renseignez-vous sur cette listeDescription
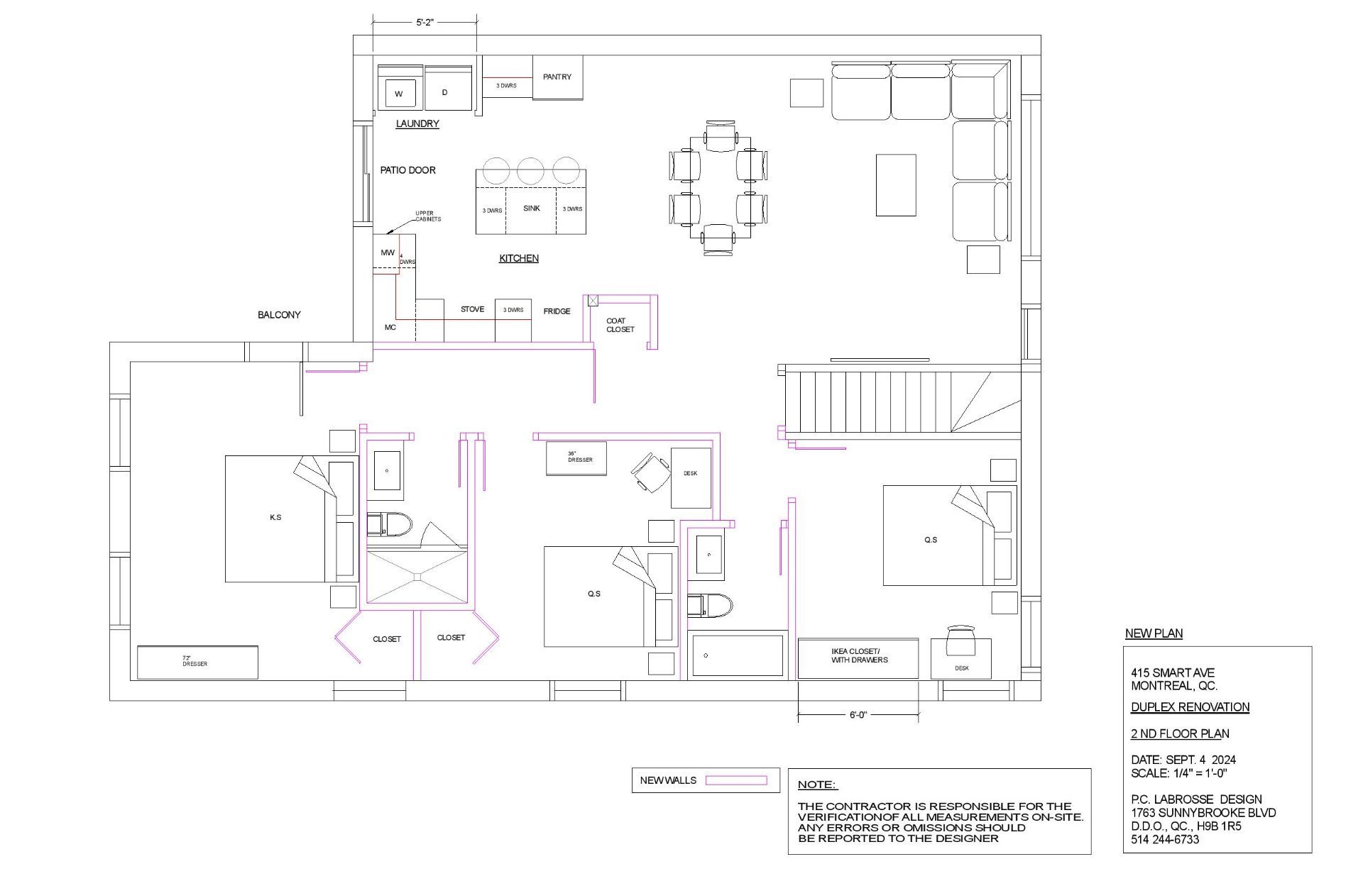
Montréal-Ouest, reconnu pour sa vie de quartier, ses parcs et son accessibilité. Soyez les premiers à vivre dans ce superbe 5½ rénové : 3 chambres, 2 salles de bain, cuisine et salle à manger à aire ouverte, salles de bain neuves, planchers de bois, luminaires et fenêtres. Inclus : électroménagers, balcon et 1 stationnement extérieurs. Emplacement idéal près de la gare, du transport, des écoles, épiceries et cafés de Westminster. Photos à venir.
Addendum
Rénovation complète incluant fenêtres, portes, luminaires,
planchers, cuisine, salles de bain et nouvelle disposition.
Casier de rangement au sous-sol inclus. Chambres de bonnes
dimensions avec garde-robes.
Le Quartier
Montréal-Ouest est l'une des communautés les plus
recherchées de la ville. Appréciée pour son charme, ses
excellentes écoles et ses commodités familiales. Ce secteur
calme et verdoyant est idéal pour élever une famille, avec
un accès facile aux parcs, garderies et au centre
communautaire de Montréal-Ouest. Profitez de vos week-ends
pour flâner dans les cafés, les boutiques ou prendre le
train de banlieue vers le centre-ville.
Déclarations à inclure dans toute Promesse de location :
1. La consommation de tabac est strictement interdite,
incluant le cannabis à usage récréatif ou médical.
2. Les locations à court terme, y compris via Airbnb, sont
interdites.
3. Les animaux de compagnie doivent être approuvés
préalablement par le propriétaire.
4. Une vérification de crédit et des références sont
obligatoires. L'acceptation de la promesse de location est
conditionnelle à l'approbation du propriétaire après
vérification du dossier du locataire.
5. Une assurance responsabilité civile de 2 millions de
dollars est exigée pour toute la durée du bail.
6. Le locataire doit veiller, lors de son départ, à laisser
l'appartement propre et libre de tout déchet ou effet
personnel.
Inclus : électroménagers de cuisine, laveuse, sécheuse, une espaces de stationnement extérieurs
Exclus : électricité, Wi-Fi, services de télécommunication
Détails des pièces
Chambre | Dimensions | Niveau | Revêtement |
---|---|---|---|
N/A |
Caractéristiques
Proximité | Autoroute/Voie rapide, Cegep, École primaire, École secondaire, Garderie/CPE, Golf, Parc-espace vert, Piste cyclable, Transport en commun, Université |
---|---|
Énergie pour le chauffage | Électricité |
Stationnement | Extérieur |
Système d'égouts | Municipal |
Approvisionnement en eau | Municipalité |
Mode de chauffage | Plinthes électriques |
Zonage | Résidentiel |